NEW
S-RESIDENCE横濱阪東橋
8.55万円
管理 / 共益費 10,000円
ブルーライン「阪東橋」駅徒歩6分
京急本線「黄金町」駅徒歩10分
ブルーライン「吉野町」駅徒歩7分
【外観】
-
バストイレ別
-
室内洗濯機置場
-
TVモニタ付きインターホン
-
独立洗面台
-
浴室乾燥機
-
オートロック
-
エレベーター
-
ネット使用料無料

洋室
キッチン
洗面所
風呂
玄関- 保証金
- -
- 敷引 / 償却
- - / -
- 敷金積み増し
- ペット飼育:1ヶ月
- 間取り / 詳細
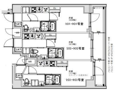
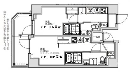
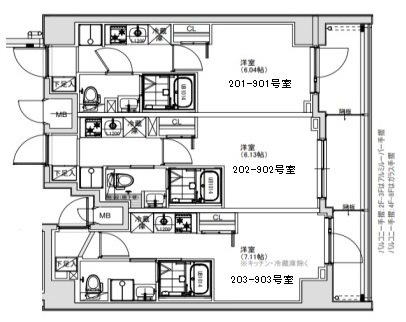
- 1R
洋室 7.1帖
洋室(7.10畳) - 向き
- 南東
- 専有面積
- 21.34㎡
- バルコニー
(テラス)面積 - -
- 所在階 / 階建て
- 9階 / 9階建
- 建物構造
- 鉄筋コンクリート
- 築年月
- 2023年1月(築2年)
- 種別
- 賃貸マンション
- 保険会社 / 料金
- 有 指定家財保険 18,000円 / 2年
- 保証会社 / 料金
- 必加入 / その他
初回保証料:総賃料50% 年次更新料:12,000円(指定保証会社のプランによる) - 現況
- 空家
- 入居可能時期
- 即時
- その他条件
- 口座振替事務手数料:330円(月額) 外国人入居(相談) 短期解約違約金あり ペット飼育:礼金25,000円追加+賃料増額(犬3,000円/月、猫10,000円/月)
- 設備条件
-
- ペット相談 / デザイナーズ / 保証人不要 / 分譲タイプ / 法人可 / 室内洗濯機置場 / フローリング / バルコニー / 都市ガス / 公営水道 / 公共下水 / 24時間換気システム / エレベーター / 電気有 / 照明器具付き / 駐輪場 / バイク置場あり / 敷地内ごみ置き場 / 耐震構造 / 外観タイル張り / ガスコンロ / コンロ2口以上 / システムキッチン / バス・トイレ別 / 浴室乾燥機 / 温水洗浄便座 / 洗面台 / シャワー / 独立洗面台 / ユニットバス / 浴槽 / エアコン / シューズボックス / CS / BS / インターネット対応 / ネット使用料無料 / オートロック / TVモニタ付インターホン / 宅配ボックス / ディンプルキー / 防犯カメラ / 角部屋
- 設備(その他)
-
-
メールボックス 都市近郊 市街地が近い 整備された歩道 管理室 浴室暖房 インターネット専用線配線済み インターネット専用線各部屋配線済み 2F以上 ダブルディンプルキー セキュリティ有り ガス給湯 3点給湯
- 契約期間
- 2年
- 賃貸区分
- 一般
- 更新料
- 1ヶ月(新賃料)
- 更新事務手数料
- -
- 総戸数
- 39戸
- 特優賃
- -
- 取引態様
- 仲介
- 物件番号
- 95589414
- 管理コード
- SMS31830
- 情報更新日
- 2025年12月05日
- 次回更新予定日
- 2025年12月19日
- 取扱会社
-
- 株式会社グリップ
- 神奈川県横浜市西区高島2丁目7-1 ファーストプレイス横浜2階
- TEL:0120-951-908
- 神奈川県知事 (4) 第27217号
- (社)神奈川県宅地建物取引業協会
(社)全国宅地建物取引業保証協会
(社)日本賃貸住宅管理協会
- 備考
- デザイナーズ分譲賃貸マンション「Le'a(レア)」シリーズ、リノベーションマンション「G.Gallery(ジーギャラリー)」シリーズなどGLIPでは他の不動産会社では取り扱っていない物件が多数あります。人気のグリフィンマンションシリーズ、ガーラマンションシリーズなども当社管理物件多数あり。ポータルサイト掲載不可の未公開物件は当社HP「グリップ横浜本店」で検索ください。
-
コンビニエンスストア
ファミリーマート 横浜千歳橋店
161m(3分)
-
コンビニエンスストア
セブンイレブン 横浜高砂町店
204m(3分)
-
ファーストフード
モスバーガー 横浜医大前店
362m(5分)
-
ドラッグストア
ドラッグセイムス 横浜吉野町店
402m(6分)
-
市役所・区役所
南区総合庁舎
410m(6分)
-
その他
ほっともっと 吉野町店
423m(6分)
-
スーパー
マックスバリュ エクスプレス 横浜吉野町店
429m(6分)
-
スーパー
まいばすけっと 横浜高根町3丁目店
437m(6分)
-
その他
マイカリー食堂 阪東橋店(松のや併設)
492m(7分)
-
ドラッグストア
M.Mドラッグイセザキ7丁目店
599m(8分)
物件の特徴
セールスポイント
インターネット使用料無料・ペット飼育相談可のデザイナーズ分譲賃貸マンション。横浜橋通商店街近く買い物便利。横浜市南区総合庁舎や横浜市立大学付属市民総合医療センターも身近な、暮らしやすい住環境です。
ポイント
2F以上 オートロック セキュリティ有り ダブルディンプルキー ダブルロック ディンプルキー モニタ付オートロック 角住戸 デザイナーズ 駅まで平坦 外壁タイル張り 耐火構造 耐震構造 分譲タイプ 平坦地 防犯カメラ 管理室 メールボックス 市街地が近い 整備された歩道 セキュリティ会社加入済
担当者のコメント
パノラマ画像
基本情報
設備条件
その他
S-RESIDENCE横濱阪東橋の他の部屋
周辺施設
近隣の物件
S-RESIDENCE横濱阪東橋
8.55万円
10,000円
1R(21.34㎡)